| 価格 | 7,280万円値下がり ![]() |
||||
|---|---|---|---|---|---|
| 所在地 | 東京都練馬区高松1丁目
この地域周辺の物件を見る |
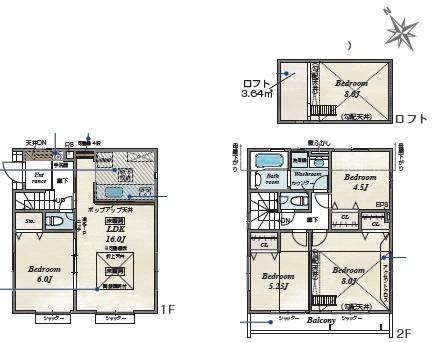
土地面積 | 90.72m² (27.44坪) | 建物面積 | 89.91u |
| 築年月 | 2025年築 | 間取り | 4LDK (-) | ||
| 交通 |
都営大江戸線 練馬春日町/徒歩13分
西武池袋線 中村橋/徒歩15分 |
||||
電話をかける(携帯・PHS可)
0120-800-844
「ホームページを見た」とお伝え下さい。
お問い合わせ番号をお伝えください
RHS-052302-204511
| 特徴 |
|
|---|---|
| セールスコメント | - |
| 採光面 | 南西 | 構造/階数 | 木造/地上2階建 |
|---|---|---|---|
| 建ぺい率 | 50(%) | 容積率 | 100(%) |
| 駐車場 | 有 | 現況/引渡し | 新築/相談 |
| 土地権利 | 所有権 | 私道負担面積 | - |
| 接道状況 | 接道: 南西 私道 道路幅: 4.5m | 用途地域 | 第一種低層住居専用地域
|
| セットバック | - | 法令上の制限 | - |
| 地目 | 宅地 | 地勢 | |
| 建築確認番号 | 都市計画 | 市街化区域 | |
| 小学校区 | 練馬区立春日小学校 (東京都練馬区) この学区の他の物件を見る |
中学校区 | 練馬中学校 (東京都練馬区) この学区の他の物件を見る |
| 取引態様 | 仲介 | ||
| 情報更新日 | 2025年12月05日 | 次回更新日 | 2025年12月19日 |
電話をかける(携帯・PHS可)
0120-800-844
「ホームページを見た」とお伝え下さい。
お問い合わせ番号をお伝えください
RHS-052302-204511
| 年利率 | % |
||
|---|---|---|---|
| ボーナス払い | 返済年数 | ||
| 頭金 | 直接入力する | 万円 | |

毎月のご返済額 |
ボーナス(×年2回) |
物件価格7,280万円 |
電話でお問い合わせ
株式会社フクシマ建設
|
電話をかける 0120-800-844 ※「ホームページを見た」とお伝えください。 |
お問い合わせ番号をお伝えください RHS-052302-204511 |
|---|
南西向きにつき陽当たり良好です♪前面道路行き止まりのため、車通りがほとんどない閑静な住宅街♪床暖房付きで冬も快適です!